
This well presented family home is perfectly situated in a sought-after location, just a short walk from the beach and close to local amenities and excellent road links.
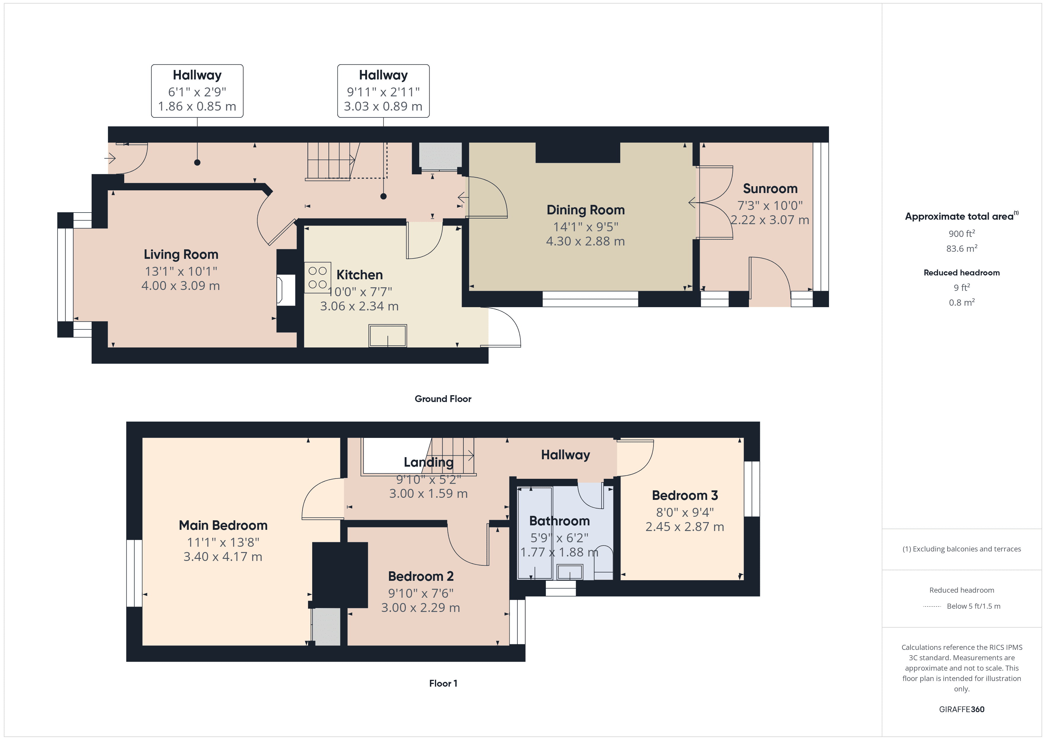
On entering, you step into a bright hallway with stairs leading to the first floor. To the front of the property is a spacious, light-filled living room featuring a large bay window, creating a calming space ideal for relaxing or entertaining. The hallway also provides useful under-stairs storage and a built-in cupboard.
From the hallway, a door leads into the modern kitchen, offering ample space for all your cooking essentials, with a convenient back door leading out to the garden. Adjacent to the kitchen is a generous dining room with a large side window and French doors opening into a lovely sunroom – a fantastic additional living space overlooking the garden.
Upstairs, you’ll find three well-proportioned bedrooms. The main bedroom at the front of the property features a built-in storage cupboard and space for additional wardrobes. The first floor offers three well-proportioned bedrooms, providing excellent versatility to suit a range of needs. Whether used as comfortable bedrooms, a home office, or a creative space, they offer plenty of flexibility. The third bedroom overlooks the rear garden, and a modern family bathroom with a bath and shower completes this floor.
Outside, the property benefits from a good-sized, private garden, ideal for outdoor entertaining and relaxation. With its excellent location, versatile living spaces, and thoughtful layout, this home would make a delightful future home for any family.
Material Information • Tenure: Freehold • Council Tax: Band C • Electricity: Mains Supply • Heating: Gas• Water Supply: Mains supply • Sewage: Mains Supply • Broadband: Standard, Superfast and Ultrafast Fibre are all available in this area • Parking: Permit • Mobile: Ofcom official website checker states that EE, Vodafone, O2 and Three available in the area • Flood Risk: Low risk
We can help you through every step of your selling journey. It starts with a detailed expert valuation of your current home. Ready to go?
Book a face-to-face valuation with one of our local property experts, free without any obligation.