
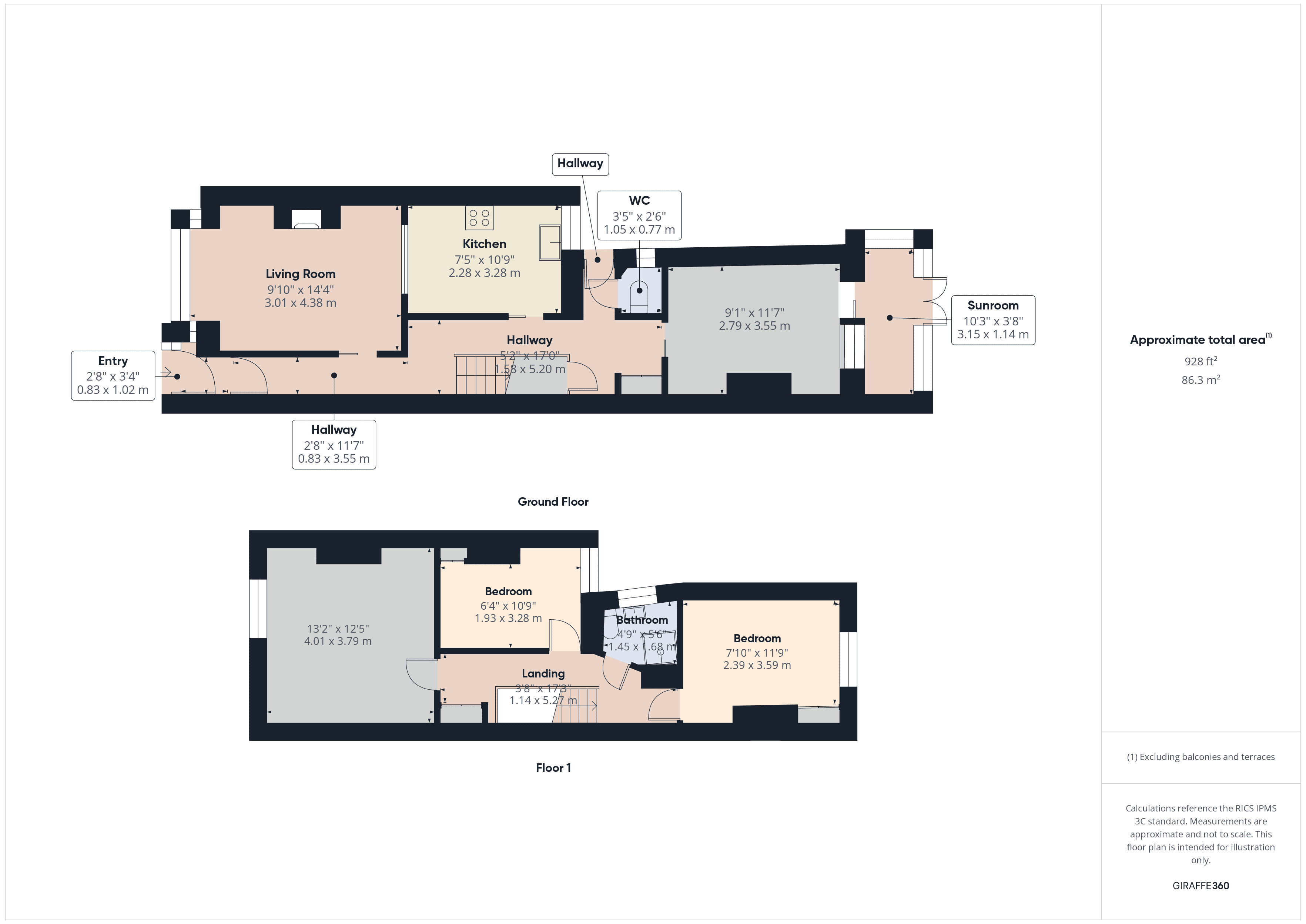
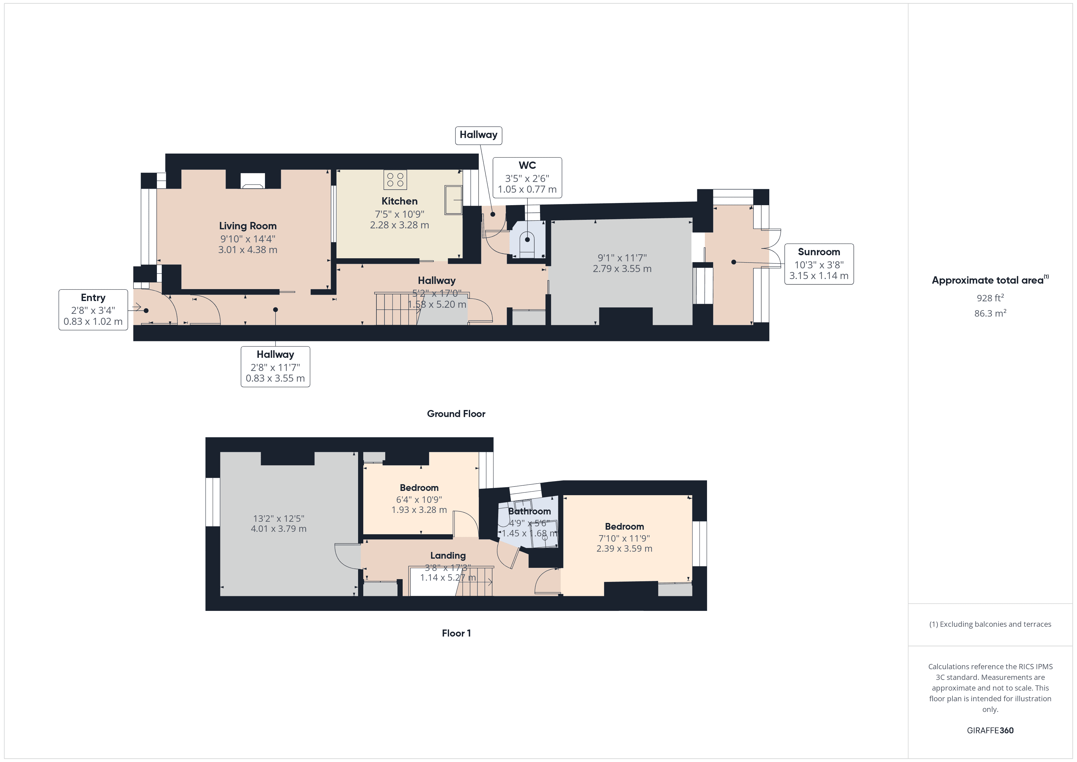
This stylish and well-presented two-bedroom property is conveniently located close to main bus routes and local amenities.
Upon arrival, a small walled courtyard welcomes you to the entrance. You step into a useful porch area, perfect for hanging coats and storing shoes. From here, you enter the bright and inviting living room, featuring a bespoke seating area, a front-facing window, and a cozy wood burner—ideal for relaxing evenings.
Moving through the hallway, you pass the staircase leading to the first floor and arrive at the stylish dining room. This space boasts a modern built-in fire, attractive wood flooring, and ample room for a dining table and storage units. A rear-facing window allows natural light to fill the room. The dining area seamlessly connects to the well-equipped kitchen, which features wooden worktops, plentiful storage, and space for appliances. A double-glazed door from the kitchen leads to the garden, while another door provides access to a sleek and modern downstairs bathroom, complete with a walk-in shower.
Upstairs, you’ll find two generously sized and well decorated bedrooms. The rear bedroom, currently used as the main bedroom, offers ample space for wardrobes and storage. The second bedroom at the front is a versatile space, currently utilised as a gym and storage area but easily adaptable to suit your needs.
The courtyard garden has been thoughtfully designed, featuring a bespoke outdoor shower—perfect for beachgoers or dog owners. A raised sunny area provides the ideal spot for outdoor dining and relaxation.
This stylish and well-maintained home is perfect for first-time buyers, those looking to move up the property ladder, or investors seeking a rental opportunity. Viewing is highly recommended!
We can help you through every step of your selling journey. It starts with a detailed expert valuation of your current home. Ready to go?
Book a face-to-face valuation with one of our local property experts, free without any obligation.