
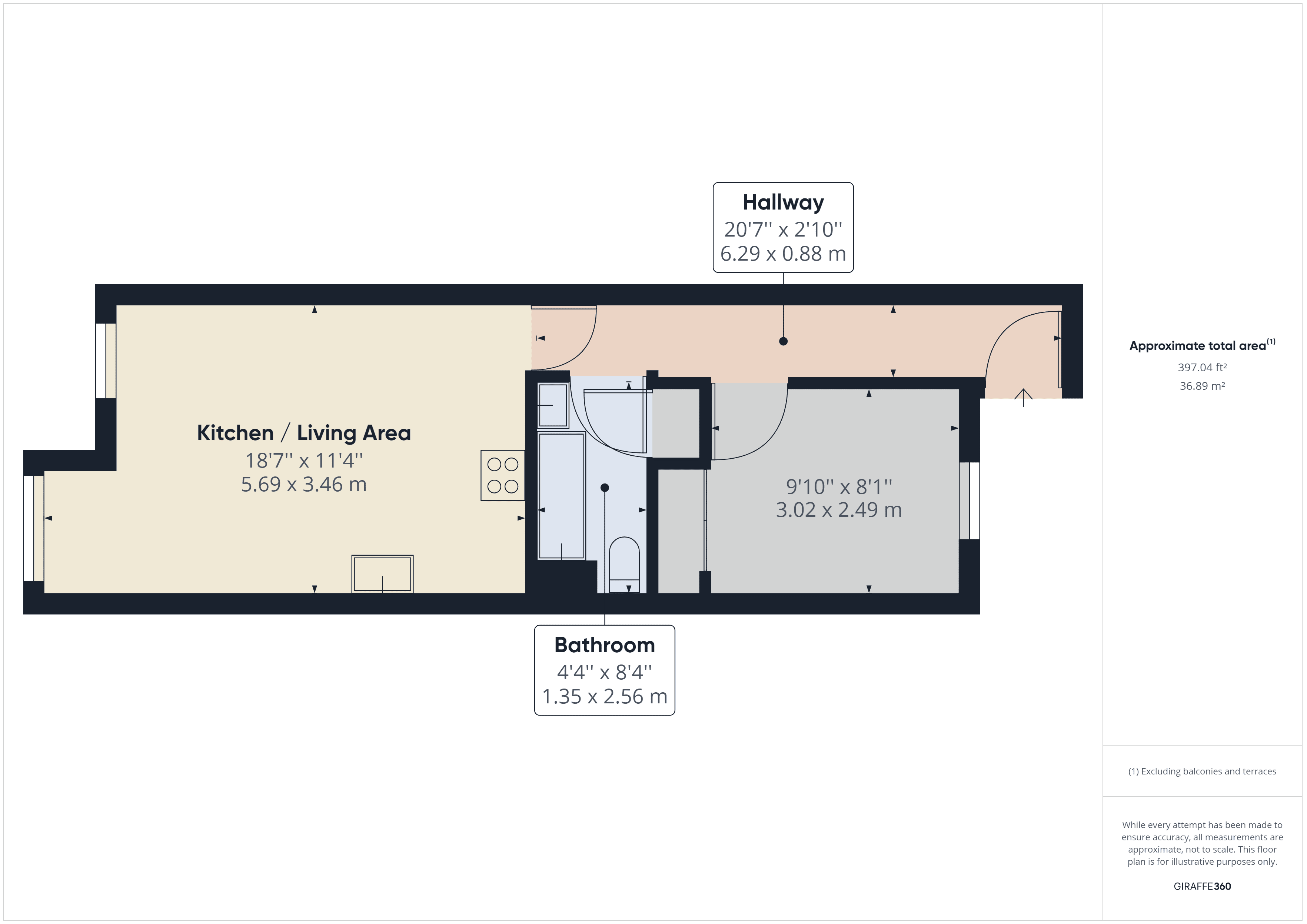
1-Bedroom Ground Floor Flat – Long Acre Court, Fratton, Portsmouth
This well-presented one-bedroom ground floor flat is located in Long Acre Court, a convenient residential area within easy reach of Fratton train station, local shops, and transport links. The property offers comfortable living space, ideal for a single professional or couple.
Property Features:
Double bedroom
Bright living area
Fitted kitchen
Bathroom with bath and shower over
Ground floor position for easy access
Permit parking
The flat is well maintained and ready for immediate occupation. Local amenities, supermarkets, and bus routes are all within close proximity, offering excellent convenience.
Rental Information:
Monthly Rent: £825
Deposit: £951
Holding Deposit: £190
Available: Now
Tenancy Term: Minimum 6 months
All viewings are by appointment only.
Applicants must have a combined annual household income of £25,500 or above.
Successful applicants will be subject to referencing and affordability checks carried out by Goodlord.
We can help you through every step of your selling journey. It starts with a detailed expert valuation of your current home. Ready to go?
Book a face-to-face valuation with one of our local property experts, free without any obligation.