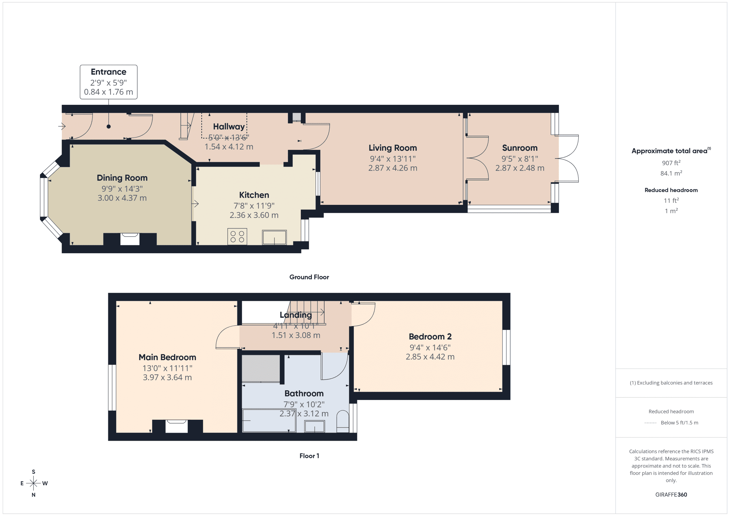
Discover the perfect blend of style and practicality in this beautifully presented two-bedroom terraced house, situated in a popular residential area renowned for its friendly community and excellent local amenities. Designed with modern living in mind, the property welcomes you into an entrance to an inner porch followed by a spacious lounge that exudes warmth and comfort, ideal for relaxing evenings or socializing. The adjoining sunroom offers a versatile retreat flooded with natural light, perfect for use as a reading nook or playroom. The lovely pink outbuilding is perfect for a potential office as it has electricity, an insulated roof, and double French panelled doors with a double glazed window ot the side.
The heart of the home is the open plan kitchen and light filled dining room, where contemporary fittings and a feature fireplace create a space that is both functional and inviting, making meal preparation and family gatherings a true pleasure.
Both double bedrooms are generously sized, featuring stylish décor and ample room for storage. They provide restful sanctuaries for family members, plus there is easy loft access (with a light) from the landing. The modern bathroom is finished to a high standard, with elegant fixtures and a soothing ambience that invites you to unwind after a long day.
Thoughtfully designed for easy maintenance, this home is ideal for first-time buyers or professionals seeking a move-in ready property that offers both comfort and convenience. Its flexible layout ensures that it can adapt to a range of lifestyles, whether you are starting a family, working from home, or simply looking for a stylish and manageable space in a sought-after location. Essential practicalities have been carefully considered to provide peace of mind and every-day ease. This exceptional home combines modern comfort with timeless appeal, offering a superb opportunity to secure a stylish residence in a thriving neighbourhood.
Material Information • Tenure: Freehold • Council Tax: Band C• Electricity: Mains Supply • Heating: Gas • Water Supply: Mains Supply • Sewage: Mains Supply • Broadband: Standard, Superfast and Ultrafast Fibre are all available in this area • Parking: On Street • Mobile: Ofcom official website checker states that EE, Vodafone, O2 and Three available in the area • Flood Risk: Low Risk
We can help you through every step of your selling journey. It starts with a detailed expert valuation of your current home. Ready to go?
Book a face-to-face valuation with one of our local property experts, free without any obligation.